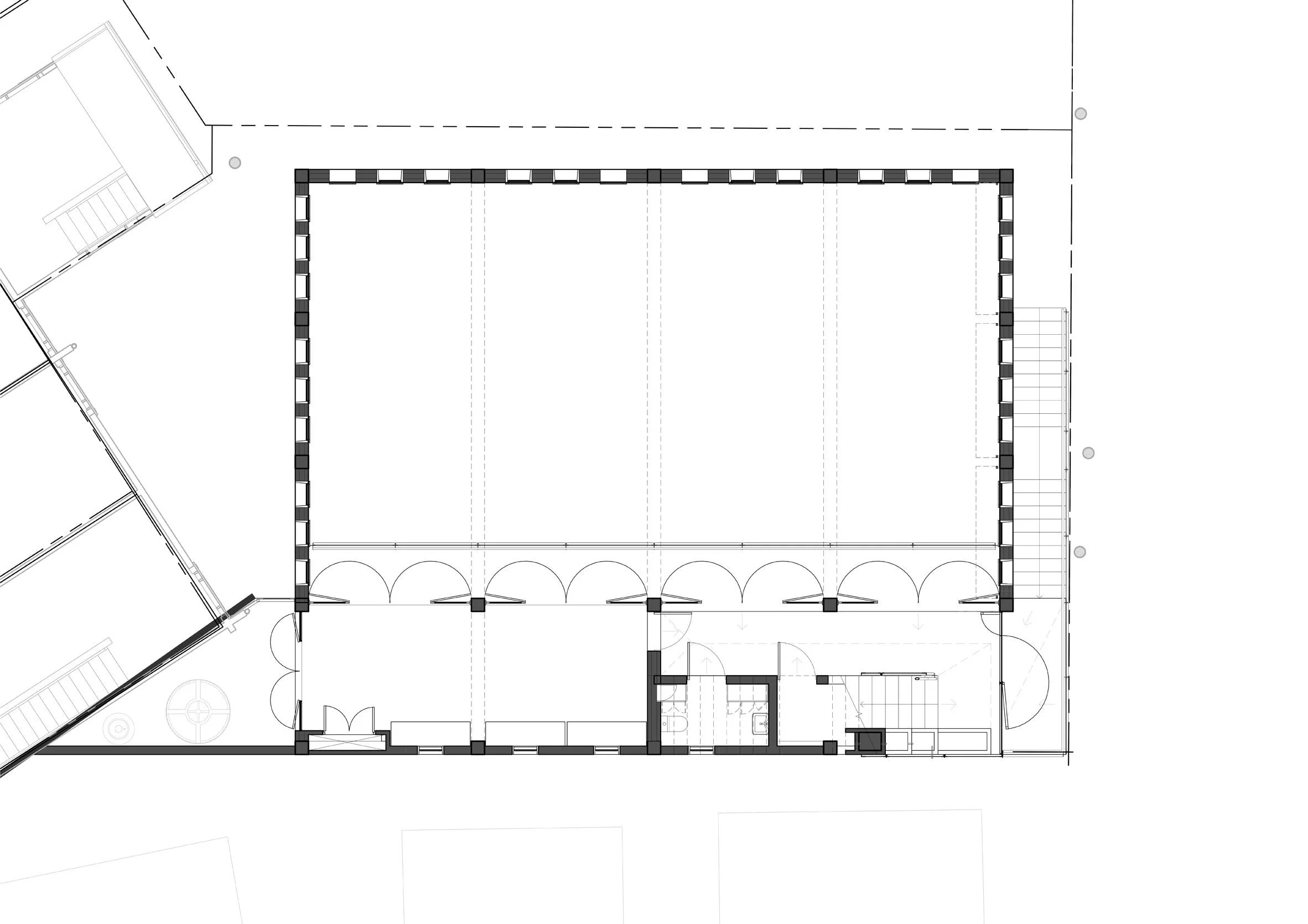
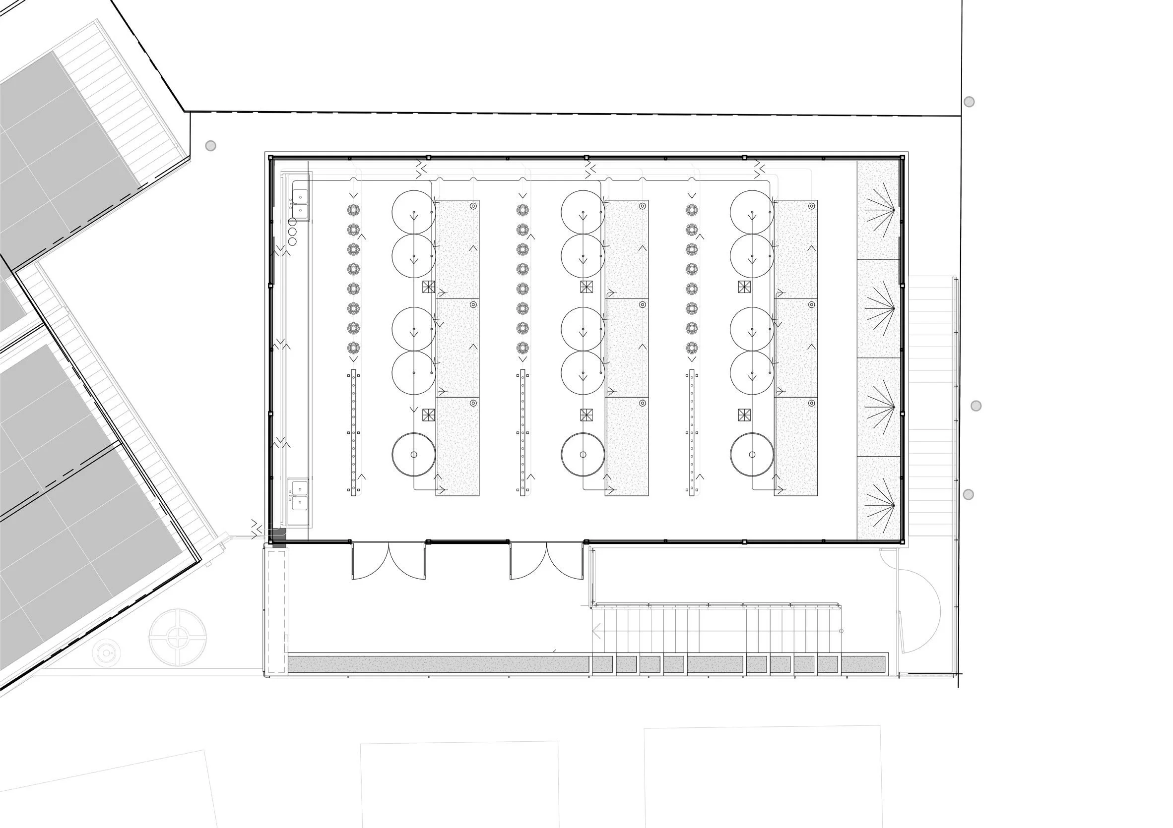
COMMUNITY CENTER
A collaboration with Urban Think Tank- Empower
Cape Town , South Africa
2021-2023
TEAM:
UTT New York: Alfredo Brillembourg / Frederic Levrat / Alexander Creem UTT-E: Benjamin Kollenberg / Hugo Van Aarde / Delana Finlayson
KCU: Khristian Ceballos Ugarte / Remy Aznar
